Prodáno

Popis nemovitosti

Exkluzivní nabídka: Prostorný rodinný dům v prestižní čtvrti Brno-Stránice

Představuji vám jedinečnou příležitost vlastnit rodinný dům na prestižní adrese v klidné ulici Rezkova v Brně-Stránicích. Tento prostorný dům z roku 1980 nabízí luxusní bydlení s úchvatným výhledem a bezkonkurenčním umístěním v ochranném památkovém pásmu. Se svými 159,95 m² užitné plochy, dvěma terasami a překrásnou okrasnou zahradou je tento dům ideální pro komfortní rodinné bydlení.

Klíčové vlastnosti:

  • 4+kk s možností modernizace, ideální pro vytvoření domova snů.
  • Dvě terasy s výhledem do zeleně, kde si užijete klid, soukromí a výhled na Brno.
  • Garáž a dostatek úložných prostor, které nejsou určeny jen pro skladování! Tři místnosti v 1. podzemním podlaží lze využít také jako dílnu, prostor pro koníčky, domácí posilovnu nebo hernu. Nabízejí skvělý potenciál pro kreativní využití.
  • 376 m² zahrady osázené vzrostlými okrasnými stromy, dřevinami a okrasné jezírko, to vše vytváří atmosféru oázy klidu.
  • Umístění v jedné z nejexkluzivnějších lokalit Brna.

Dispozice:

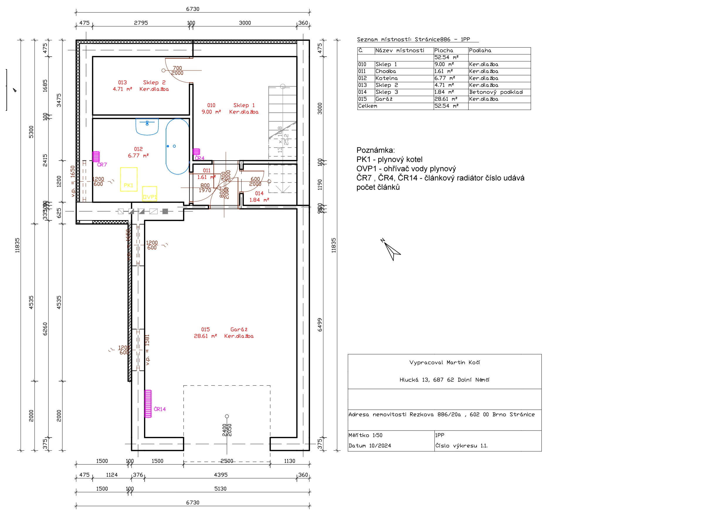
  • 1. podzemní podlaží: Garáž, tři místnosti (sklep, komory), technická místnost – nejen pro skladování, ale ideální pro zábavu nebo relaxaci!
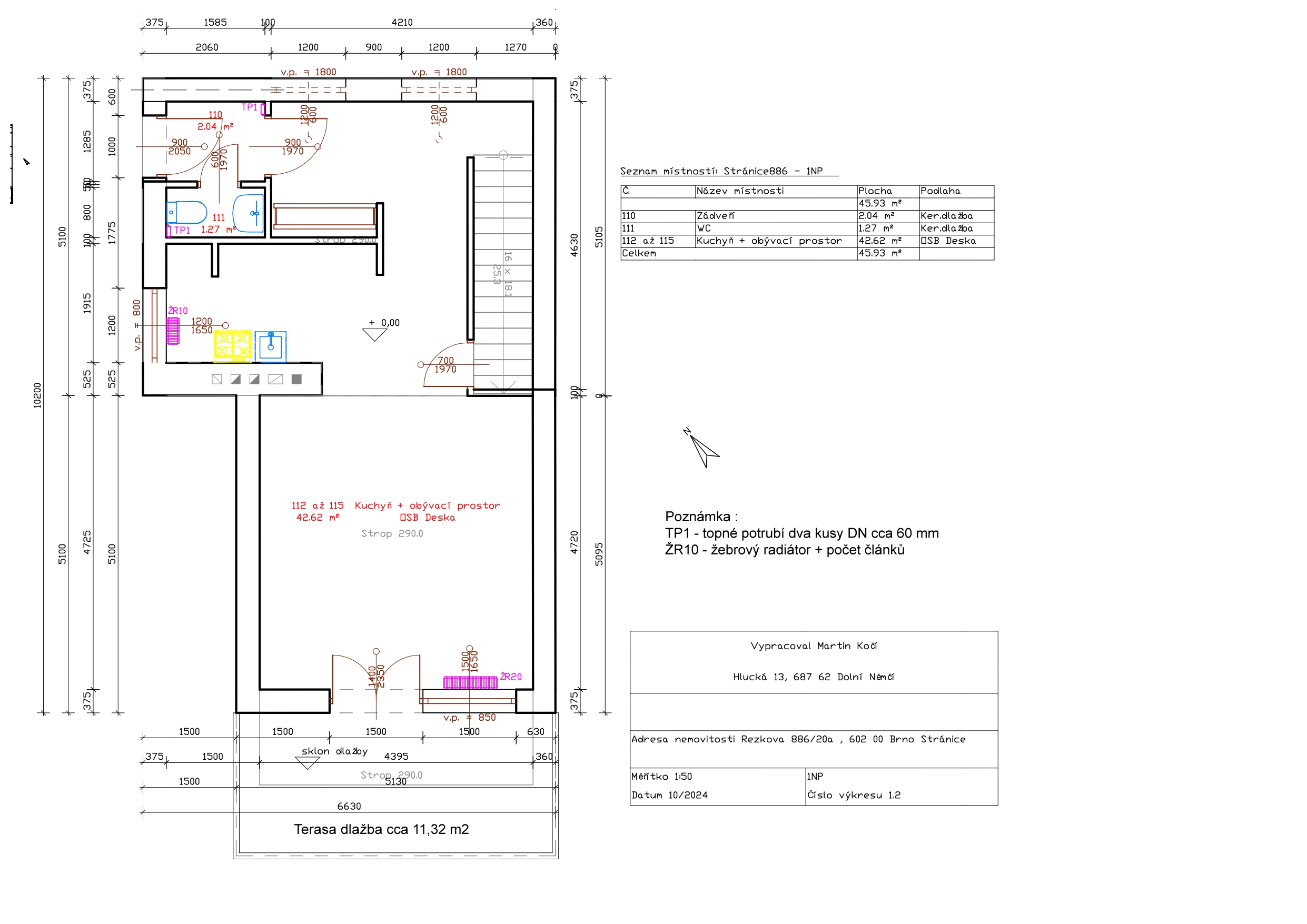
  • 1. nadzemní podlaží: Vstupní chodba, WC s umyvadlem, velkorysý obývací pokoj s kuchyňským koutem a krbem, prostorná terasa pro relax a odpočinek.
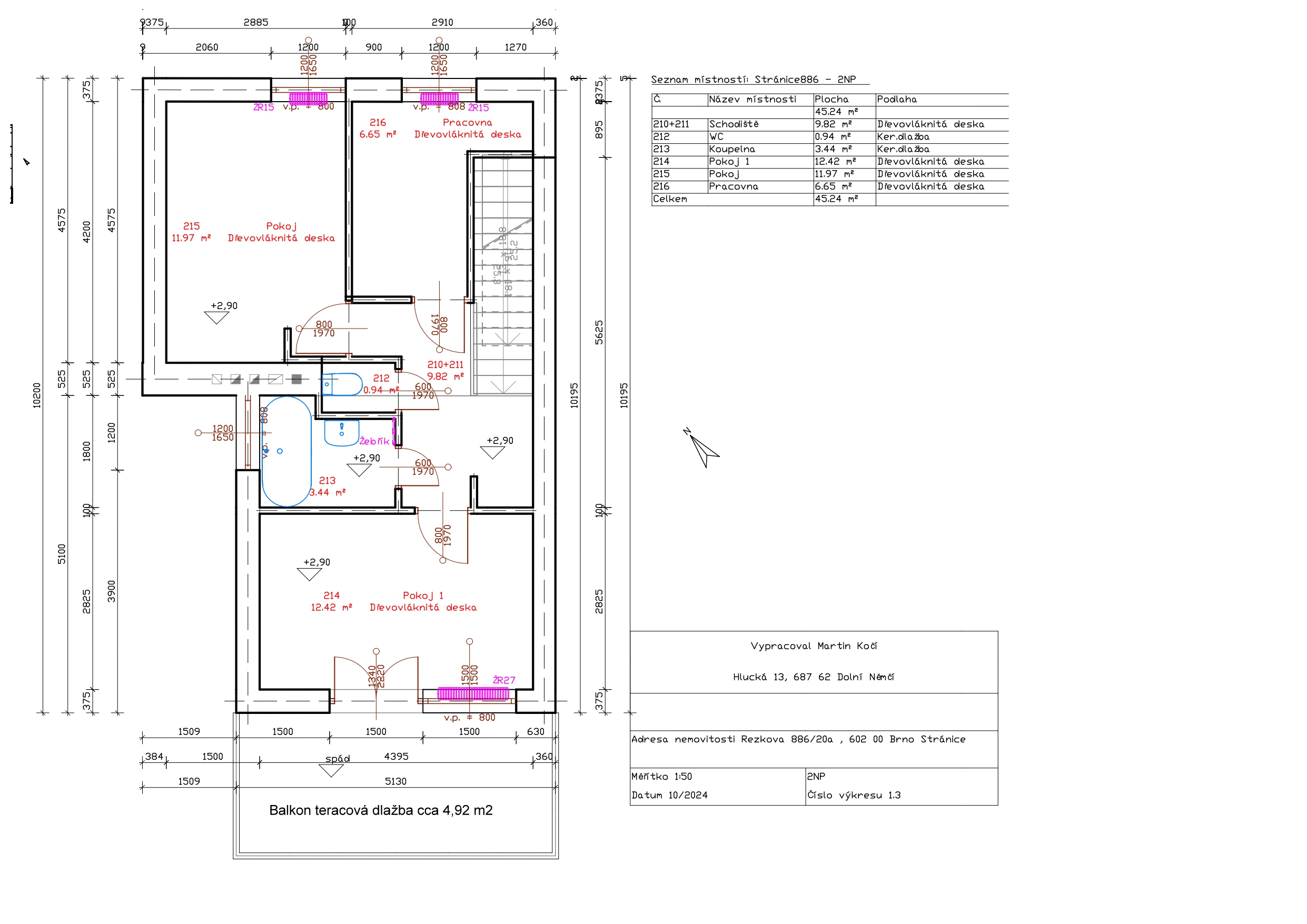
  • 2. nadzemní podlaží: Ložnice, dva další pokoje, koupelna s vanou, samostatné WC, druhá terasa s výhledem na Brno.

Dům je v původním, avšak velmi zachovalém stavu, což nabízí jedinečnou příležitost pro nového majitele realizovat své představy o modernizaci. Je vybaven plynovým kotlem, plynovým ohřívačem vody a elektřina je již vedena v mědi.

Co vás čeká v okolí? Tato prestižní lokalita nabízí nejen klidné a bezpečné prostředí, ale také skvělou občanskou vybavenost a přírodní krásy v bezprostřední blízkosti. Nedaleko se nachází oblíbený park Kraví hora, kde najdete nejen krásné procházky, ale i hvězdárnu a koupaliště. Pro milovníky přírody je zde Wilsonův les, ideální pro běhání či rodinné vycházky. Samozřejmě nechybí ani skvělé napojení na centrum města a blízkost škol, obchodů či restaurací, které tuto lokalitu dělají ještě atraktivnější.

Nečekejte a kontaktujte mě! Tato nabídka je jedinečná nejen svou polohou, ale i příležitostí rozhodnout o konečné ceně. Majitelé mají svou představu, ale jsou otevřeni seriózním návrhům. Neváhejte mě oslovit, ráda vás domem osobně provedu a probereme možnosti vašeho budoucího bydlení.


Videoprohlídka



Virtuální prohlídka zde



Půdorys 2D

Máte zájem o osobní prohlídku? Napište nebo zavolejte mi.

Pokud budete potřebovat pomoc s financováním, mám pro Vás zkušeného hypotečního specialisty, který Vám doporučí bezpečný a výhodný postup.