Popis nemovitosti
Nabízím Vám ke koupi chatu o dispozici 4+1 s možností celoročního užívání, která se nachází v Hornosvratecké vrchovině, v přírodním parku Svratecká hornatina. Jedná se o chatu v katastru obce Lomnice u Tišnova, v části zvané Žleby. Užitná plocha zde činí krásných 120m2, velikost pozemku je 608m2.
Dispozice:
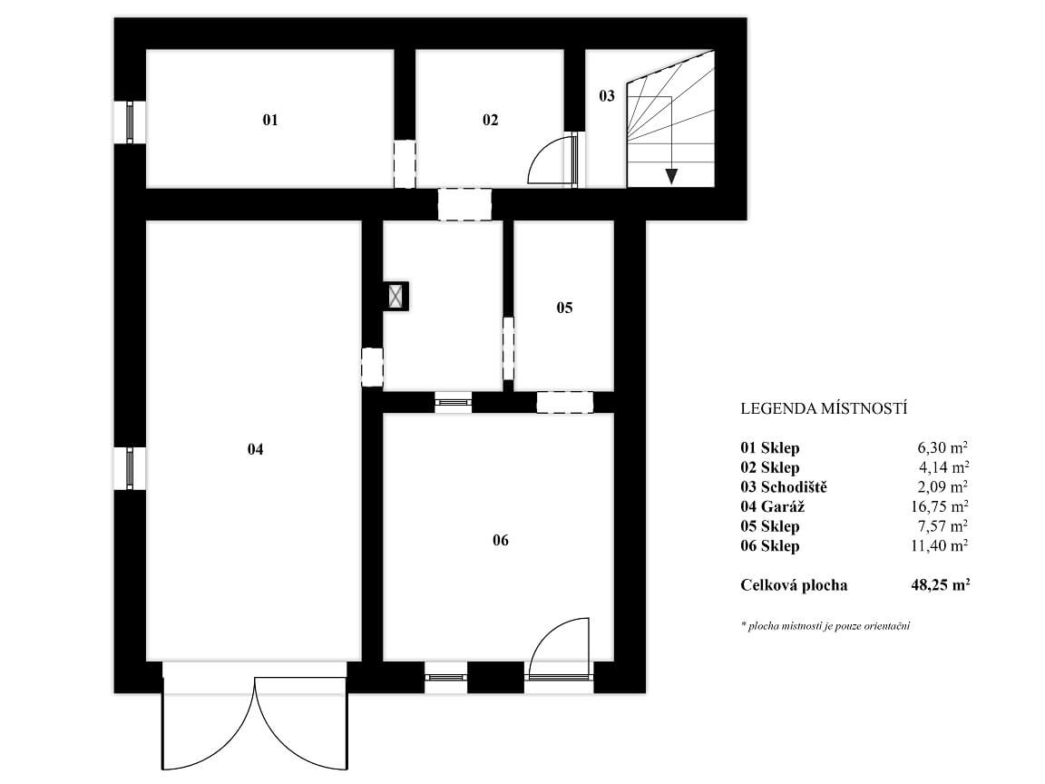
Přízemí - garáž, vchod do objektu, 4 technické místnosti a pevné schodiště do 1.NP. Je zde umístěna přečerpávací stanice pro přívod vody z vlastní studny, kotel na dřevo nebo uhlí s novými rozvody pro vytápění celého objektu. Okna plastová.
1.NP - vchod do objektu, chodba, kuchyně, koupelna, samostatný záchod, ložnice, obývací pokoj, šatna a další pokoj. Ve všech místnostech jsou radiátory. Ohřev vody zajištuje elektrický bojler. Okna jsou původní dřevěná. Na pozemku elektřina, jímka a užitková voda. Lze se napojit na zdroj pitné vody z obecního vodovodu, který se nachází nedaleko.
Chata má zděné základy v kombinaci s kamenem. Kuchyně je zděná, ostatní obytné místnosti jsou zvenku opláštěny Hobrou (dřevovláknité desky). Před cca dvěma lety zde započala rekonstrukce, přízemí s technickými místnostmi a kuchyně. Další obytné místnosti jsou v původním stavu a nabízí tak novému majiteli možnost rekonstrukce dle svých představ.
Parkování je přímo na pozemku. Zastávka autobusu (Lomnice, Tišnov, Žernovník, Černá Hora, Rájec-Jestřebí, Blansko, Kozárov, Lysice, Boskovice, Rašov, Hluboké Dvory, Brumov-Osiky) přímo naproti chatě. Veškerá občanská vybavenost je vzdálena cca 1,2km v Lomnici nebo přímo v Tišnově.
Chata je dle katastru nemovitostí vedena jako objekt k rekreaci s číslem evidenčním, lze tedy financovat pomocí hypotečního úvěru a to i bez účelově do výše 1.mil. Kč.
Půdorys 2D a 3D
Městys Lomnice
Lomnice je městys v okrese Brno-venkov v Jihomoravském kraji. Rozkládá se na rozhraní Boskovické brázdy a Hornosvratecké vrchoviny, v přírodním parku Svratecká hornatina, přibližně 6 kilometrů severně od Tišnova.
Všechny potřebné informace najdete na: www.lomnice.cz

















