Popis nemovitosti
Lokalita, až 3 obytné pokoje + prostorná samostatná kuchyně s oknem, 2 velké zasklené lodžie, šatna, dostatek prostoru a světla, sklep, 3 výtahy v domě, bezbariérový přístup, bezproblémové parkování, v okolí zázemí pro děti i čtyřnohé mazlíčky, výborná občanská vybavenost a dopravní dostupnost?
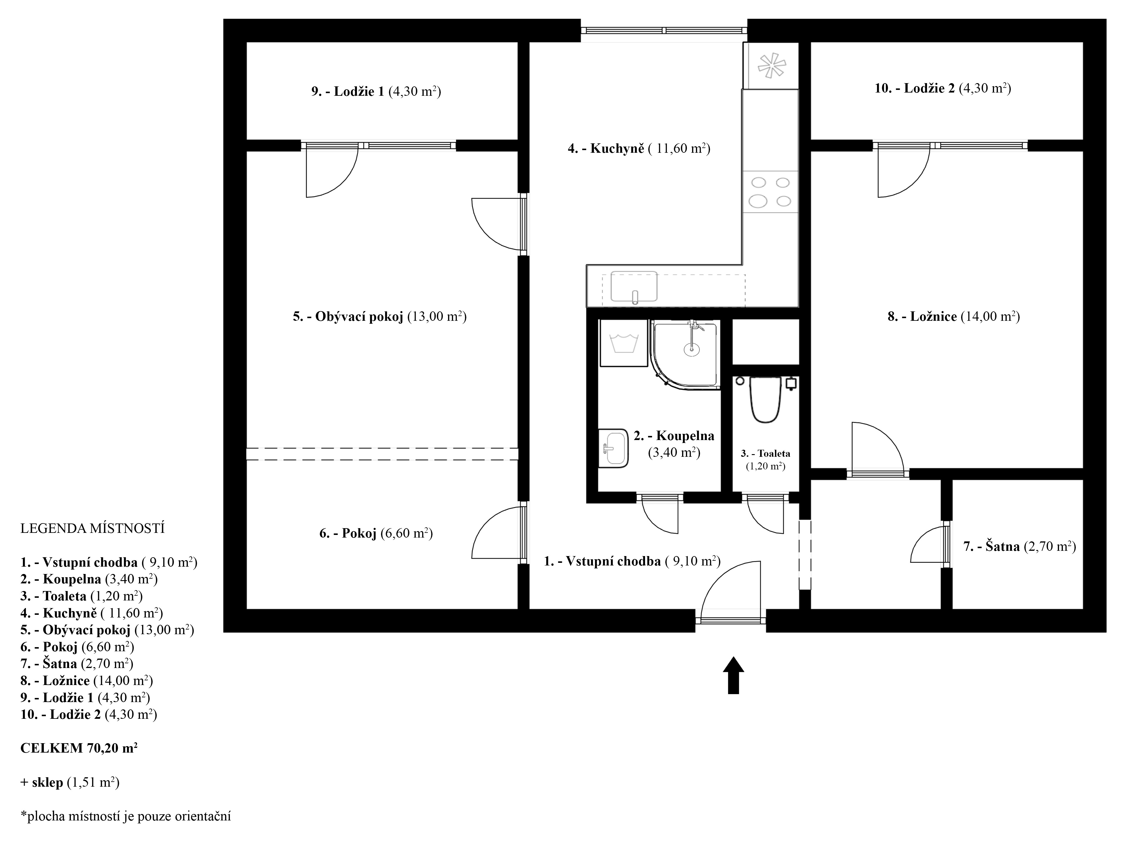
Tak právě tyto přednosti má byt, který Vám dnes, v zastoupení majitele velmi ráda představím. Jedná se o byt v osobním vlastnictví, který je pro svou velikost vhodný jak pro rodinné bydlení, tak díky své poloze jako investiční příležitost. Není zatížen hypotečním úvěrem a nachází se na Horáckém náměstí v Brně – Řečkovicích. Je umístěn v 5.patře revitalizovaného panelového domu se 3 výtahy. Dispozičně je byt řešen jako 2,5+1, kdy z původního obývacího pokoje vznikl pomocí sádrokartonové stěny další pokoj, který mohou budoucí majitelé nebo nájemníci využít jako ložnici, dětský pokoj popř. pracovnu. Kdo má však s bytem jiné plány, lze tuto stěnu odstranit a získat tak větší místnost se dvěma vstupy. Dostatek prostoru nabízí další pokoj s lodžií, vstupní chodba se šatnou či komorou, koupelna se sprchovým koutem a oddělená toaleta. Komfort tomuto bydlení dodává samostatná velká kuchyně s oknem a kuchyňskou linkou a dále dvě prostorné zasklené lodžie s výhledy do okolí. Byt je velmi dobře udržovaný, čerstvě vymalovaný, vyklizený a je tedy připraven k okamžitému uvolnění. Bytový dům je také bez dluhů, v posledních letech prošel kompletní revitalizací, je vybaven kamerovým systémem a vstupem na čip a má dva vchody, z nichž jeden, je bezbariérový. Pohodlně se k němu dostanete autem a zajistí Vám tak jednoduché stěhování a ušetří Vaše síly. Hned za domem se nachází dětské hřiště a v bezprostřední blízkosti oplocený výběh pro psí mazlíčky. Je zde několik ZŠ a MŠ, zdravotní středisko, obchody, pošta, sportoviště, restaurace a jiné. Nedaleký „ Zamilovaný Hájek (Zamilec)“ vás bude lákat k procházkám či vyjížďkám na kole….
Půdorys 2D a 3D
Základní údaje o městské části Řečkovice a Mokrá Hora
| Počet obyvatel | 14 650 (k 1. 1. 2006) |
| Rozloha | 819 ha |
| Nadmořská výška | 226 - 398 m n. m. |
| První písemná zmínka | 1277 n.l. |
| Starosta | Mgr. Bc. Marek Viskot |
| Školy | 2 základní 5 mateřských osmileté gymnázium |
| Doprava | Tramvaj č. 1 Autobusy č. 41, 42, 65, 93 Železnice |
| Vybavenost | Pošta Knihovna |
| Sítě | Kanalizace Vodovod Plynofikace |
Více informací o lakalitě na: http://www.reckovice.brno.cz/scripts/index.php?id_nad=28









.jpg)











