Popis nemovitosti
Ve výhradním zastoupení majitele Vám dnes nabízím velmi hezký byt o dispozici 3+kk s balkonem, po kompletní rekonstrukci v Tišnově, na ulici Jamborova. Byt se nachází ve 2.patře/3 revitalizovaného, cihlového domu bez výtahu. Novým majitelům nabídne velkorysý obývací pokoj s kuchyňským a jídelním koutem. Dominantou je zde velmi vkusně zvolená kuchyňská linka s vestavnými spotřebiči (myčka, elektrická trouba, mikrovlnná trouba, lednice s mražákem a indukční deska) a navíc s dostatkem prostoru nejen pro vaření a přípravu pokrmů, ale i pro uskladnění nádobí a trvanlivých potravin. Z obývacího pokoje je vstup na balkon s hezkým a klidným výhledem do okolí. Současná ložnice disponuje prostorem pro velkou manželskou postel, ale i pro vestavné skříně. Odpočinek po celém dnu a hlavně v létě zcela jistě zajistí orientace tohoto pokoje na severovýchodní stranu. Z ložnice je vstup do dětského pokoje, který je nyní zařízený pro jedno dítě.. Pokud, ale potřebujete více prostoru a máte děti dvě, lze tento pokoj využít jako ložnici a tu nynější, zařídíte dle Vašeho vkusu pro Vaše drahé ratolesti. Prostorná chodba nabízí novým majitelům dostatek úložného prostoru v podobě vestavných skříňí. Z chodby jsou dva samostatné vstupy do prostorné koupelny a na samostatnou toaletu.
Vytápění bytu je centrální a je zde zavedena pouze elektřina. K bytu náleží také sklep v suterénu domu.
Celkové měsíční náklady na bydlení činí 3 500 Kč + elektřina. Velmi dobrá dopravní dostupnost jak do centra tak do okolí. Zastávka IDS cca 2min chůze (centrum, Drásov, Kuřim, Veverská Bítýška), vlaková zastávka cca 8min chůze. V bezprostřední blízkosti bytu najdete mateřskou školku, dětské hřiště, obchod se smíšeným zbožím, drogerii, poštu, restauraci a v neposlední řadě letní kino.
Byt je svou polohou a vybavením vhodný pro mladé páry, rodinu s dětmi, ale i jako investice za účelem pronájmu. Budu se těšit na osobní prohlídku společně s Vámi.
Uvolnění bytu: dle domluvy
Video
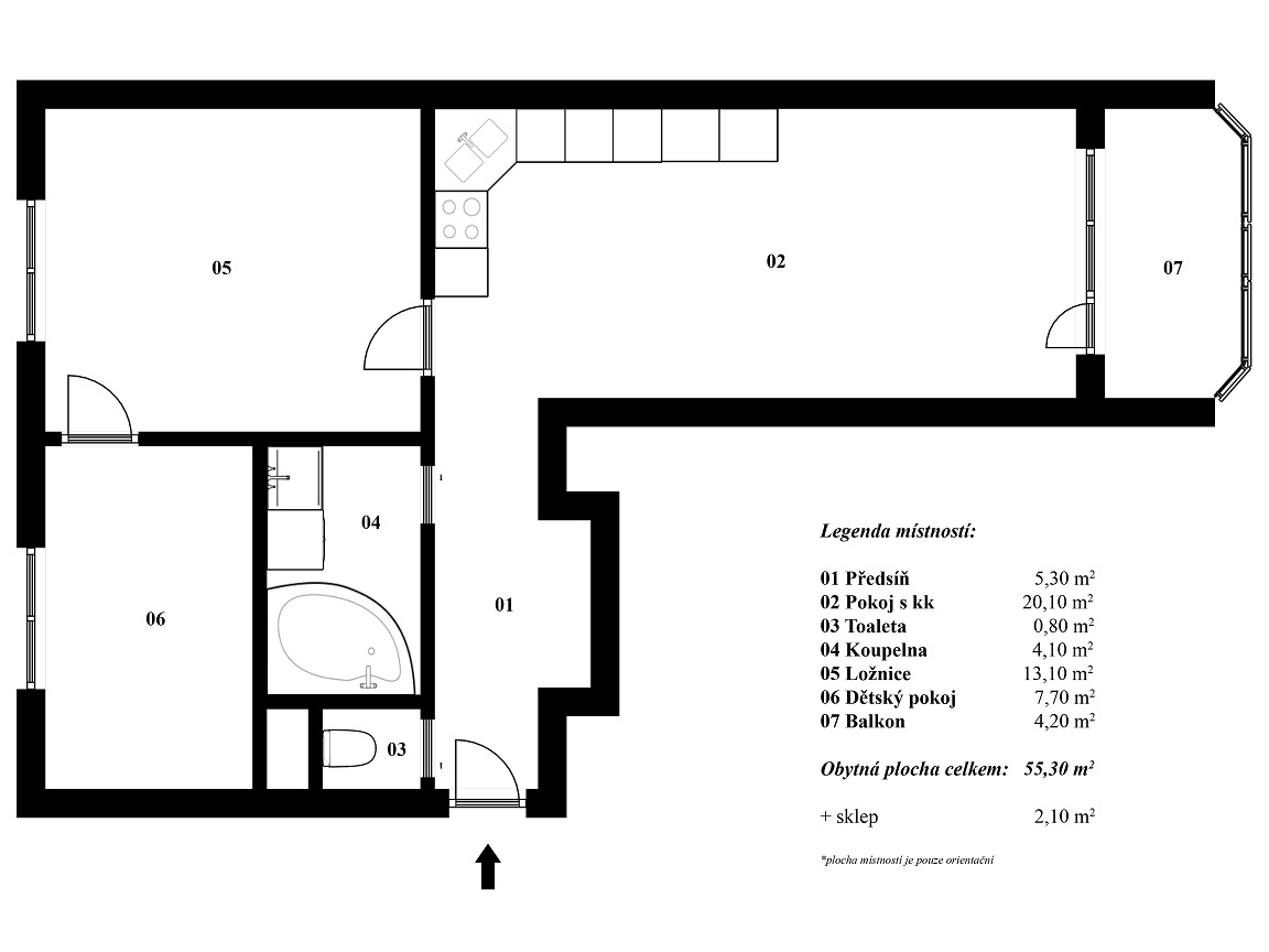
Půdorys 2D a 3D
Něco málo o Tišnově…
V současnosti je Tišnov moderním, rozvíjejícím se městem, o jehož bohaté minulosti vypovídá množství světských i církevních staveb, pocházejících z různých historických období. Počet obyvatel města spolu s místními částmi k 18.5.2021 činil 9 341.
Město Tišnov je rozloženo v široké kotlině, obklopené zalesněnými kopci, v malebné krajině v podhůří Českomoravské vysočiny, v kotlině protékané řekou Svratkou a v závětří hory Květnice (470 m), která je významnou mineralogickou a botanickou lokalitou
Pro svoji polohu je právem nazýván „Bránou Vysočiny“. Tišnov leží 25 km severozápadně od Brna, je součástí okresu Brno-venkov a náleží pod Jihomoravský kraj.
Více informací o tomto městě, kultuře, občanské vybavenosti včetně důležitých kontaktů naleznete na www.tisnov.cz






















