Byt 2+kk v Novém Lískovci – Ideální k rekonstrukci podle vašich představ

Prodáno

Měsíční náklady: 4 526 Kč SVJ

Elektřina: 1 260 Kč

Popis nemovitosti

Hledáte byt v žádané brněnské lokalitě, kde si můžete vytvořit domov podle svých představ? Tento byt o dispozici 2+kk na ulici Oblá v Novém Lískovci vám to umožní!

Byt je v původním stavu s umakartovým jádrem a je určen ke kompletní rekonstrukci, což vám dává volnost přizpůsobit si ho přesně tak, jak potřebujete. Dům už prošel zásadní modernizací – je zateplený, má novou střechu, lodžie, plastová okna, moderní výtahy a revitalizované společné prostory.

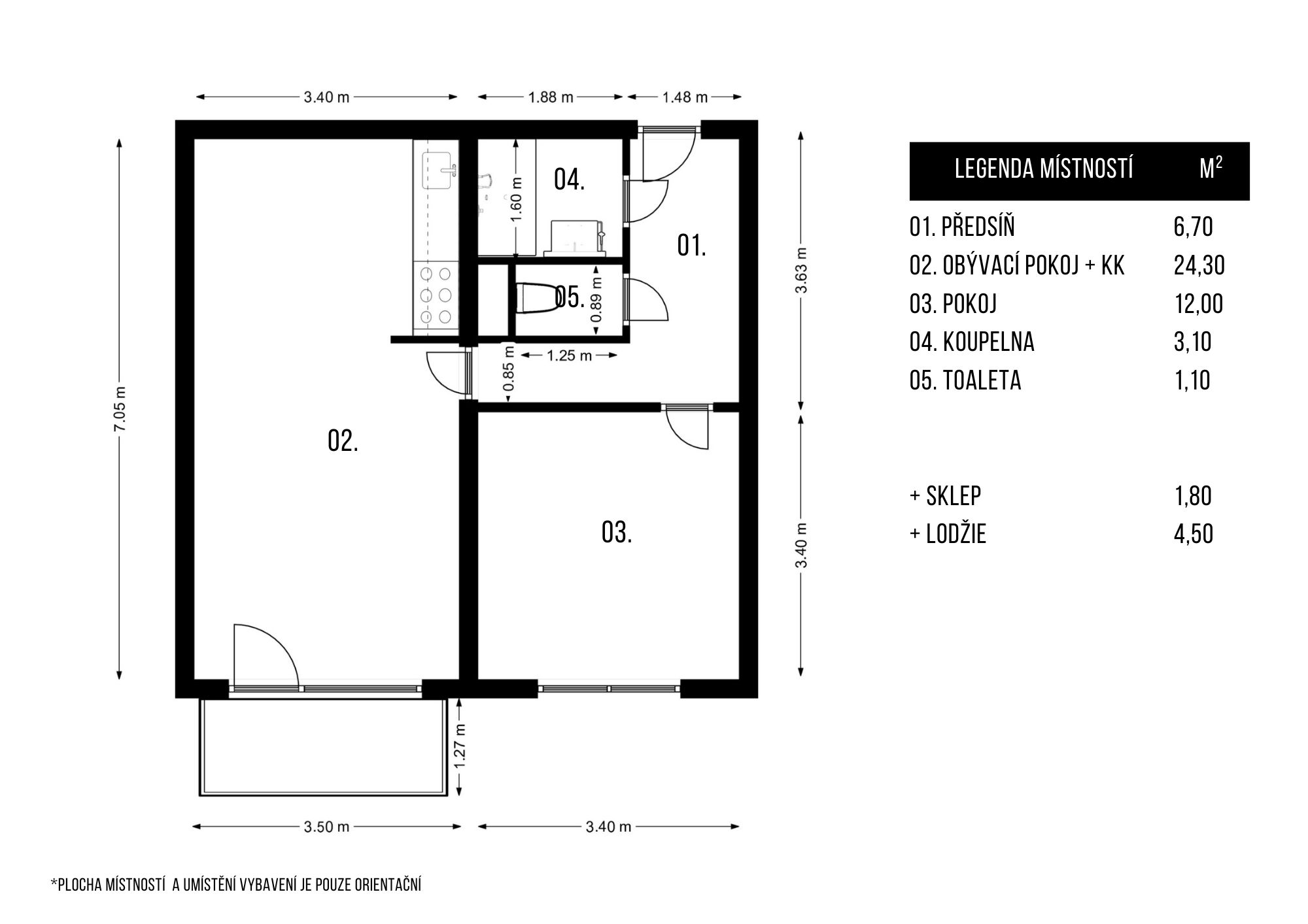
Dispozice bytu:

  • Obytná místnost: 24,3 m²
  • Pokoj: 12 m²
  • Předsíň: 6,7 m²
  • Koupelna: 3,1 m²
  • WC: 1,1 m²
  • Sklepní kóje: 1,8 m²
  • Zasklená lodžie: 4 m² – skvělé místo pro relaxaci

Byt se nachází v 1. patře osmipodlažního panelového domu s výtahem. V současnosti je družstevní, ale možný převod do osobního vlastnictví v roce 2025 (již duben/září) umožňuje financování hypotečním úvěrem. Anuita: 11 000 Kč.

Skvělá lokalita s perfektní dostupností

Nový Lískovec je oblíbená část Brna s kompletní občanskou vybaveností. Najdete zde školy, školky, zdravotnická zařízení, poštu, supermarkety a širokou síť obchodů a služeb. Dopravní dostupnost je výborná – MHD i rychlý přístup na dálnici.

Tento byt je ideální pro ty, kteří hledají bydlení s možností úprav na míru, nebo skvělou investiční příležitost s budoucím růstem hodnoty!



Půdorys 2D

Máte zájem o osobní prohlídku? Napište nebo zavolejte mi.

Pokud budete potřebovat pomoc s financováním, mám pro Vás zkušeného hypotečního specialisty, který Vám doporučí bezpečný a výhodný postup.