Popis nemovitosti
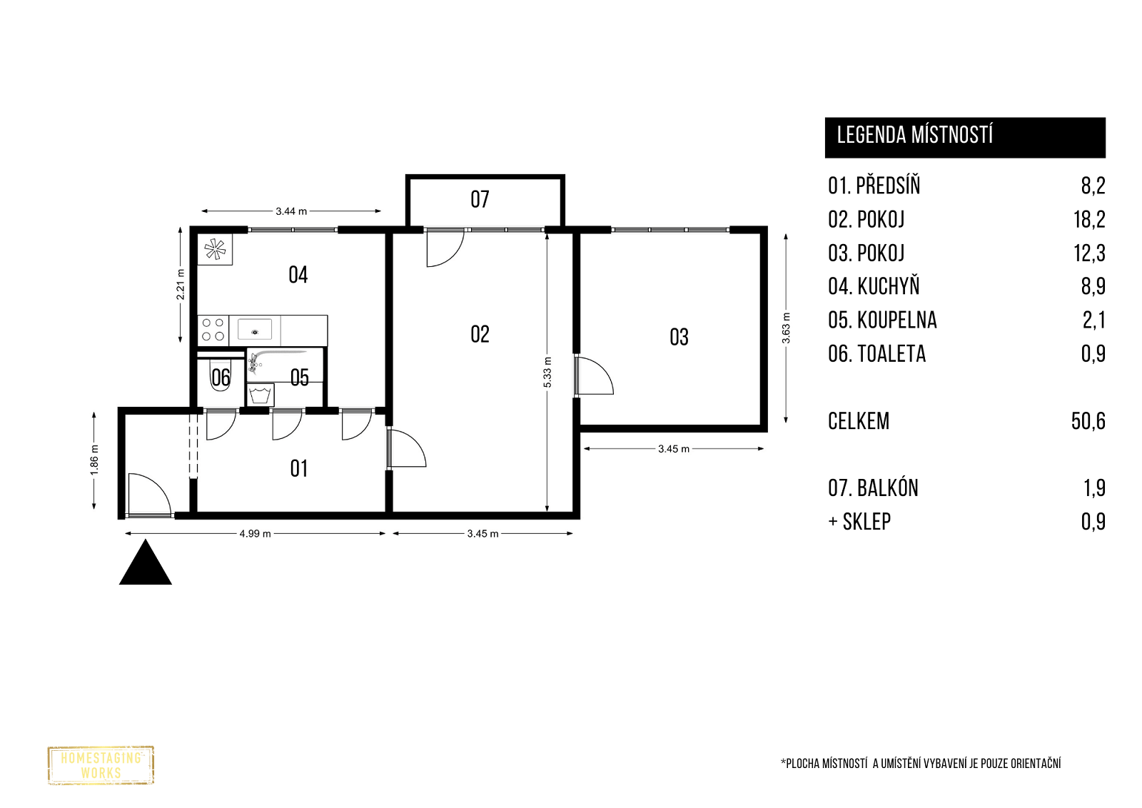
Ve výhradním zastoupení klienta Vám nabízím ke koupi byt na strategickém místě o dispozici 2+1 s balkonem na ulici bří Hovůrkových v Přerově. Obytná plocha bytu činí bezmála 51m2 + balkon 1,9m2 + sklep 0,9m2.
Byt se nachází ve 3.patře panelového domu bez výtahu. Byt je v původním stavu, vyklizený, v chodbě jsou původní vestavné skříně a je určen buď k investici nebo po rekonstrukci na bydlení, kdy se novému majiteli nabízí rozšíření koupelny a získání tak většího prostoru v kuchyni např. na rohovou kuchyňskou linku. Na uvedených fotografiích je zobrazen reálný stav a pro představu jsme použili i virtuální staging.
V roce 2016 proběhla revitalizace domu, bylo provedeno zateplení a osazeny plastová okna. Bytový dům i byt jsou bez dluhů a neváznou na nich žádné hypoteční úvěry.
V okolí domu je kompletní občanská vybavenost - škola, školka, sportoviště, MHD, obchody, market, lékaři a další. Možnost parkování na přilehlých parkovištích nebo komunikaci.
Náklady na bydlení 3.400,- Kč + elektřina a plyn.
Budu se těšit na osobní prohlídku společně s Vámi.
Půdorys 3D
Obec
Vítejte v Přerově - městě s mamutí historií!
Město Přerov leží v srdci Moravy (N 49°27', E 17°27') a rozkládá se na obou březích řeky Bečvy. Je kulturním, společenským a administrativním centrem regionu.
Podrobné informace o městě najdete na www.prerov.eu
V restauracích nezapomeňte ochutnat známé zástupce místní gastronomie Hanáckou kyselku a pivo Zubr.
Sportovně zaměření návštěvníci Přerova mohou využít přerovský plavecký areál, některý z mnoha tenisových kurtů nebo si mohou zajít zabruslit na zimní stadion, který v letním období nabízí zázemí pro in-line bruslaře s multifunkční plochou, která je vhodná také pro florbal nebo hokej. Cyklisté mohou využít sítě cyklostezek, kterými je město protkáno. Fanoušci motorových sportů jistě dobře znají Přerovskou rokli, která hostí autocrossové a motocrossové závody evropského formátu.
V deštivých dnech vyzývá k návštěvě kino Hvězda, loutkové divadlo Přerovský Kašpárek nebo sportovní centra, kde si lze zahrát squash, bowling, minigolf, badminton, nebo si zacvičit.
Pěší turisty potěší zejména tři naučné vlastivědné stezky a několik značených turistických tras.
K návštěvě také láká městská památková zóna se zámkem a mnoho přírodních i kulturně historických zajímavostí.
Při své návštěvě nezapomeňte také navštívit Památník lovců mamutů, který leží na naučné stezce Předmostím až do pravěku, archeologickou expozici v Muzeu Komenského a unikátní venkovní expozici Památník jednoty bratrské.
Díky ideální poloze města, které se nachází v srdci Moravy, můžete také podnikat výlety do všech světových stran na nedaleká turisticky zajímavá místa (hrad Helfštýn, Zoo Svatý kopeček, Zbrašovské aragonitové jeskyně, Hranická propast, poutní místo Svatý Hostýn,…).












