Popis nemovitosti
Hledáte byt na takové adrese, která zůstane vždy zařazena mezi ty nejlepší ve městě? Jste přesvědčeni, že investice do nemovitosti v dobré lokalitě, je to, co se vyplatí? Dnes mám pro Vás příležitost pořídit si tento velkorysý byt o dispozici 1+1 s výměrou 54m2, na jedné z nejžádanějších adres v Brně, na ulici Sušilova, v těsné blízkosti centra.
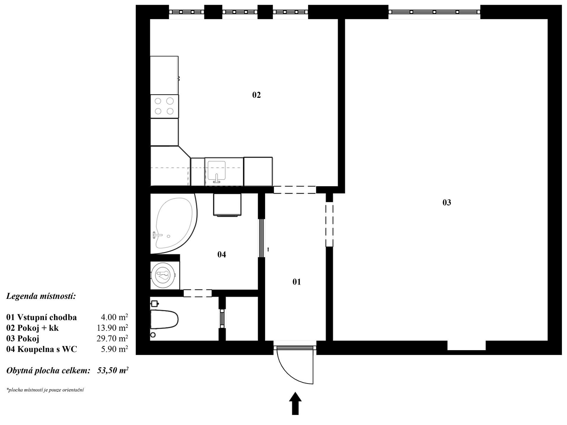
Tento byt se nachází ve 3.NP/8 památkově chráněné cihlové budovy s výtahem. V této nemovitosti Vás jistě zaujmou dva samostatné neprůchozí, prostorné pokoje, které jsou nyní řešeny jako kuchyňě s jídelnou a dále obývací pokoj spojený s ložnicí. Dispozičně si jej však můžete upravit dle vlastních představ, díky velkému dostatku místa, kterou Vám tento byt nabízí. Další z předností je prostorná koupelna s rohovou vanou, umyvadlem a toaletou se světlíkem. Je zde zavedena kabelová televize a internet. K bytu náleží sklepní kóje o velikosti 5m2. K relaxaci a odpočinku bude novému majiteli nebo nájemníkům sloužit upravený vnitroblok se zahradou. Vzhledem k lokalitě a dispozičnímu řešení pokojů doporučuji tento byt, také jako investiční. Byt je v současné době pronajímán velmi výhodně platícím nájemníkem do konce září 2021, který by byl ochoten v pronájmu pokračovat. Parkování před domem zajišťují modré zóny, pro rezidenty stojí parkování 200 Kč/rok a k tomu jako bonus dostanete 100 volných hodin pro Vaše návštěvy. V okolí bytu veškerá občanská vybavenost, do centra Brna se dostanete pěšky za pár minut. Byt i dům jsou bez dluhů a nevázne tady žádný hypoteční úvěr.
Půdorys 2D a 3D
Městská část
Městská Čtvrť Veveří sousedí přímo s historickým jádrem Brna. Zástavbu čtvrtě tvoří mnohapatrové z velké části historické domy a řada reprezentativních domů, jako například honosné secesní nájemní domy na Konečného náměstí, jimž dominuje domovní blok Tivoli na nároží Konečného náměstí a Jiráskovy ulice. Dominantou celé čtvrti jsou tzv. „Brněnská Trojčata“ na Šumavské ulici. Do katastrálního území patří mimo jiné i Kraví hora, na níž je Hvězdárna a planetárium Brno.
Středem Veveří prochází třída Veveří, po níž získala čtvrť název. Druhou nejvýznamnější třídou je ulice Kounicova, kterou lemují významné městské budovy (střední i vysoké školy, areál Sokola, pošta, hotely, finanční ústavy apod.). Dále je významnou třídou na hranici s Černým Polem Lidická a s Ponavou Štefánikova. Dopravní uzly Konečného náměstí a Pionýrská spojuje ulice Kotlářská. Dalšími významnými ulicemi jsou např. Úvoz nebo Údolní. Mezi významná náměstí patří Obilní trh, Janáčkovo náměstí či Konečného náměstí.
Ve čtvrti se na ulicích Veveří a Šumavská nachází také několik budov Vysokého učení technického v Brně, z nichž 60metrové výškové budovy Kancelářského komplexu Šumavská tvoří takřka dominantu čtvrti. V sousední Akademické ulici se nachází budova právnické fakulty Masarykovy univerzity a na ulici Kounicova Univerzita obrany, Ústav operačně taktických studií a Moravská zemská knihovna. Na samé jižní hranici čtvrti se nachází na Žerotínově náměstí reprezentativní budova Nového zemského domu, v níž dnes sídlí krajský úřad Jihomoravského kraje. Dalšími významnými stavbami je hvězdárna a planetárium na vrchu Kraví hora, na němž se nachází mimo jiné i koupaliště. Na Obilním trhu se nachází porodnice Fakultní nemocnice Brno.












